Status och handlingar
-
Ett start-pm antas av politikerna. Därefter utreds olika sakfrågor, till exempel trafik, buller och dagvatten. Ett planprogram föregår detaljplaneringen och ger en samlad bild av kommunens mål för utvecklingen av ett större område. Programmet är vägledande för kommande planeringen, men inte juridiskt bindande.
-
Vid samrådet kan närboende och andra berörda ge synpunkter på förslaget till detaljplan, och kommunen kan hämta in mer kunskap. När samrådsperioden är över sammanställer kommunen synpunkterna och bearbetar planförslaget.
-
Ett bearbetat förslag ställs ut för granskning och en ny möjlighet ges att lämna synpunkter.
- Affisch.pdf
- Planbeskrivning.pdf
- Plankarta.pdf
- Samrådsredogörelse.pdf
- Underlag-Artskyddsutredning fåglar.pdf
- Underlag-Dagvattenutredning.pdf
- Underlag-Groddjursinventering.pdf
- Underlag-Grundvattenmätningar.pdf
- Underlag-Kulturmiljöutredning.pdf
- Underlag-Miljöredovisning.pdf
- Underlag-MUR Geoteknik.pdf
- Underlag-Naturvärdesinventering.pdf
- Underlag-Radonriskundersökning.pdf
- Underlag-Riskutredning.pdf
- Underlag-Tekniskt PM Geoteknik.pdf
- Underlag-Trafikutredning.pdf
-
Efter granskning kan kommunen göra mindre ändringar i planförslaget. Ett slutligt förslag beslutas av kommunfullmäktige.
-
Den nya planen börjar gälla (vinner laga kraft) när överklagandetiden gått ut, förutsatt att inga överklaganden kommit in, eller att de instanser som prövar överklaganden sagt nej. Planen styr hur marken får användas och vad som kan byggas.
-
Markfrågor och projektering ingår i förberedelserna.
-
När bygglov är beviljat kan man börja bygga enligt den nya detaljplanen.
Aktuellt Myrsjö badhus
Vad händer den närmaste tiden?
Den yttre stommen, inklusive yttertak och prefabricerade väggar, är nu färdigrest. Arbetet med taket och fasaden pågår, bland annat montering av plåtdetaljer, fasadskivor och ribbor.
Den invändiga stommen av trä är färdigmonterad och montering av stålbassänger pågår. Plattsättning med klinkerplattor beräknas starta inom kort.
I dusch- och omklädningsrummen pågår murnings- och putsarbeten, och glaspartier monteras både invändigt och utvändigt.

Visionsbild av ett färdigbyggt Myrsjö badhus. Illustration: Liljewall/Hemsö.

Ögonblicksbild från det stora bassängrummet på plan två.

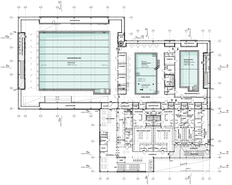
Ritning av badhuset.
Badhuset i siffror
- 5 300 kvadratmeter stort.
- 1 motions- och träningsbassäng om 25 x 20 meter.
- 8–10 simbanor.
- 1 multibassäng med höj- och sänkbar botten.
- 1 familjebad med barnbassäng för de minsta och en undervisningsbassäng.
- 1 familjebastu och separata dam- och herrbastur.
- 51 sittplatser på fast läktare.
- 126 publikplatser på mobil läktare.
- 1 gym med gruppträningssal.
- 5 omklädningsrum (herr/dam/flex/2 gruppomklädningsrum).
- 1 café.
- Flera studieplatser för ungdomar.
Gör en egen rundvandring i badhuset
Nu kan du få en förhandstitt av badhuset. Du kan gå på upptäcktsfärd och uppleva vartenda skrymsle inifrån och ut - före badhuset ens kommit på plats. Vill du hellre delta i ett drönarrace? Gå till drönarikonen på asfalten utanför entrén. Lycka till!
Så här gör du
1. Klicka här för att komma till förhandstitten.
2. Aktivera helskärmsläge och ljud genom att klicka på respektive ikon.
3. Gör upplevelsen personlig genom att välja en avatar och skriv in ditt namn. Klicka på "Delta".
På datorn: Navigera med W och S för framåt/bakåt samt A och D för vänster/höger. Upptäck ytterligare funktioner genom att högerklicka för att öppna menyn. Behöver du hjälp? Spana in hjälpmenyn nere till höger eller tryck på H. Vill du dölja hjälpmenyn trycker du på H igen.
På mobilen: Rör dig genom att trycka på skärmen och ändra vy genom att hålla och dra. App-menyn hittas via hamburgerikonen uppe till höger.

Om Myrsjö badhus
Myrsjö badhus kommer kunna ta emot 200 000 besök per år och erbjuda kurser och aktiviteter för Nackabor i alla åldrar, från babysim till seniorverksamhet. Anläggningen kommer att innehålla en motions- och träningsbassäng om 25 meter med läktare och en multibassäng med höj- och sänkbar botten. Det kommer också att finnas ett familjebad med en barnbassäng och en undervisningsbassäng, en familjebastu, en gruppträningssal samt inne- och utegym.
Badhuset kommer att byggas enligt ett koncept med minskad energiförbrukning vid byggnation och drift, och ökad livslängd för byggnaden. HemTag – som ägs till lika delar av Hemsö och Tagebad – kommer att utveckla, äga och driva badhuset på uppdrag av Nacka kommun. Medley kommer att stå för den operativa driften.
Här kan du läsa mer om Myrsjö badhus och Hemtags koncept Ekobad.
Skiss över nya Myrsjö sportcentrum. Klicka på bilden för att förstora.
Bakgrund
- Projektet startade i och med att kommunstyrelsens stadsutvecklingsutskott godkände start-pm den 2 maj 2017.
- Nacka växer och det behövs tre nya simhallar i kommunen. En av dem är tänkt att ligga i Myrsjö i Orminge. Detaljplanen ska också göra det möjligt att bygga en ny idrottshall, till exempel en ishall. Montessorihuset, en nybyggd förskola i området, ska kunna ligga kvar i närheten av det framväxande sportcentret.
- Under juni - augusti 2017 var detaljplaneförslaget ute för samråd.
- Under oktober - november 2019 fanns planförslaget utställt för granskning i Nacka kommuns utställningshall och på biblioteken i Orminge centrum och Nacka Forum.
- Kommunfullmäktige antog planförslaget 18 maj 2020, § 142 (PDF-dokument, 179 kB) .
- Miljö- och stadsbyggnadsnämnden tillstyrkte planförslaget 18 mars 2020, § 48, MSN § 48.pdf.
- Kommunfullmäktiges antagandebeslut överklagades till mark- och miljödomstolen i juni 2020, och 18 december 2020 meddelade domstolen att överklagandena avslås. Domen överklagades inte och därmed vann detaljplanen laga kraft 8 januari 2021.
- 2023 framkom nya förutsättningar kring artskydd på platsen. Nya artskyddsutredningar och anmälan till Länsstyrelsen gjordes och beviljades 2024. Nya ersättningshabitat har skapats för mindre hackspett på en areal som är dubbelt så stor som platsen där badhuset ska byggas.
Handlingarna finns att läsa under STATUS och HANDLINGAR.

Orminge
Projektet hör till ett större utvecklingsområde. Gå hit för att få överblick och läsa om andra projekt i området.

Läs om stadsbyggnadsprocessen och hur du kan påverka
Sidan uppdaterades: